内閣府は、令和3(2021)年に全国の保育所や幼稚園などで過去最多の2347件の事故があり、5人が死亡したと発表している(※1)。武蔵野市内ではどうか?

武蔵野市は野鳥の森公園(武蔵野市西久保1丁目)の土地を購入する。
(項目・担当課・ページ)
財政援助出資団体 職種別人数及び平均給与、手当等一覧 企画調整課 1
財政援助出資団体の障害者法定雇用率、達成度、雇用人数 企画調整課 4
令和3年度新型コロナウイルス感染症対応地方創生臨時交付金充当事業一覧 企画調整課 5
第2期公共施設等総合管理計画における公共施設等の維持管理・更新等に係る中長期的な経費の見込み内訳 総務部総務課 6
市内公共施設又は公共施設が存する建物のエレベーターかご内の音声案内一覧 総務部総務課 7
条例以外(要綱等)で設置した委員会等において、報酬として支払った各委員会の報酬総額・一人当たりの報酬額・設置根拠 人事課 8
所属別月別超過勤務時間数 人事課 12
所属別1人当たり超過勤務時間 人事課 13
社会保障・税番号制度(マイナンバー制度)費用内訳 情報政策課 14
多摩26市 一般会計基金残高及び市民一人当たりの基金額 財政課 15
令和3年度 新型コロナウイルス感染症対策にかかる予算 財政課 16
多摩26市令和4年度予算額及び市民一人当たりの予算額 財政課 17
契約全般について、一般競争入札、指名競争入札、随意契約そのれぞれの、件数・金額及び全体に占める割合(令和3年度) 管財課 18
随意契約により契約が行われたものの契約理由別件数・金額とその割合(今和3年度) 管財課 18
2号随契のうち、プロポーザルによらない案件について、契約 先及び契約金額(令和3年度) 管財課 19
市内における非課税世帯数の推移 市民税課 23
商店会の解散件数とその名称及び会員の増減数、増減率 産業興課 24
新型コロナウイルス感染症関連倒産件数月別推移 産業振興課 25
消費生活センターにおける霊感商法による被害の相談件数と相談者の男女別、年齢別、及び被害額 産業振興課 26
武蔵野市立武蔵野芸能劇場条例第1条にある「郷土の古典芸能 の保存、育成及び芸術文化の振興を図る」ことを目的とした芸 能劇場小劇場の催し物数と内容 市民活動推進課 27
マイナンバーカードの交付枚数及び交付率の月別推移 市民課 28
戸籍届出件数、更正件数、再製件数の推移 市民課 29
新型コロナウイルス感染症自宅療養者支援の実施状況について 安全対策課 30
避難所における電源確保の備品の状況 防災課 31
新型コロナウイルス感染拡大に伴う水道料金・下水道使用料の 支払い猶予件数について 下水道課、水道部総務 32
新型コロナウイルス感染症に係る社会保険料の減免の決定件数 高齢者支援課、保険年金課 33
新型コロナウイルス感染症に係る生活福祉資金融資件数の月別の推移 地域支援課 34
特別養護老人ホームの入所申込者数と市内市外施設の入所定員の推移 高齢者支援課 35
要支援・要介護認定者数と認定率の推移 高齡者支援課 36
市で保管、管理している新型コロナウイルスワクチンの廃棄状 健康課 37
多摩26市の若年層健康診査の実施状況 健康課 38
国民健康保険税の市独自の減免策とその適用実績 保險年金課 39
0~5歳児の就園状況 子ども育成課 40
一斉入所 認可保育施設 1次募集人数 (令和4年4月) 子ども育成課 41
市採用の保育園給食調理職員の年代別人数 子ども育成課 42
市内保育園における事故報告件数と事故概要 子ども育成課 43
認可保育所における年齢別定員・申込者数 子ども育成課 44
令和3年度保育士・幼稚園教諭等処遇改善臨時特例事業等の対象施設ごとの平均金額 子ども育成課 45
認可保育所、認証保育所の園庭の有無の割合 子ども育成課 46
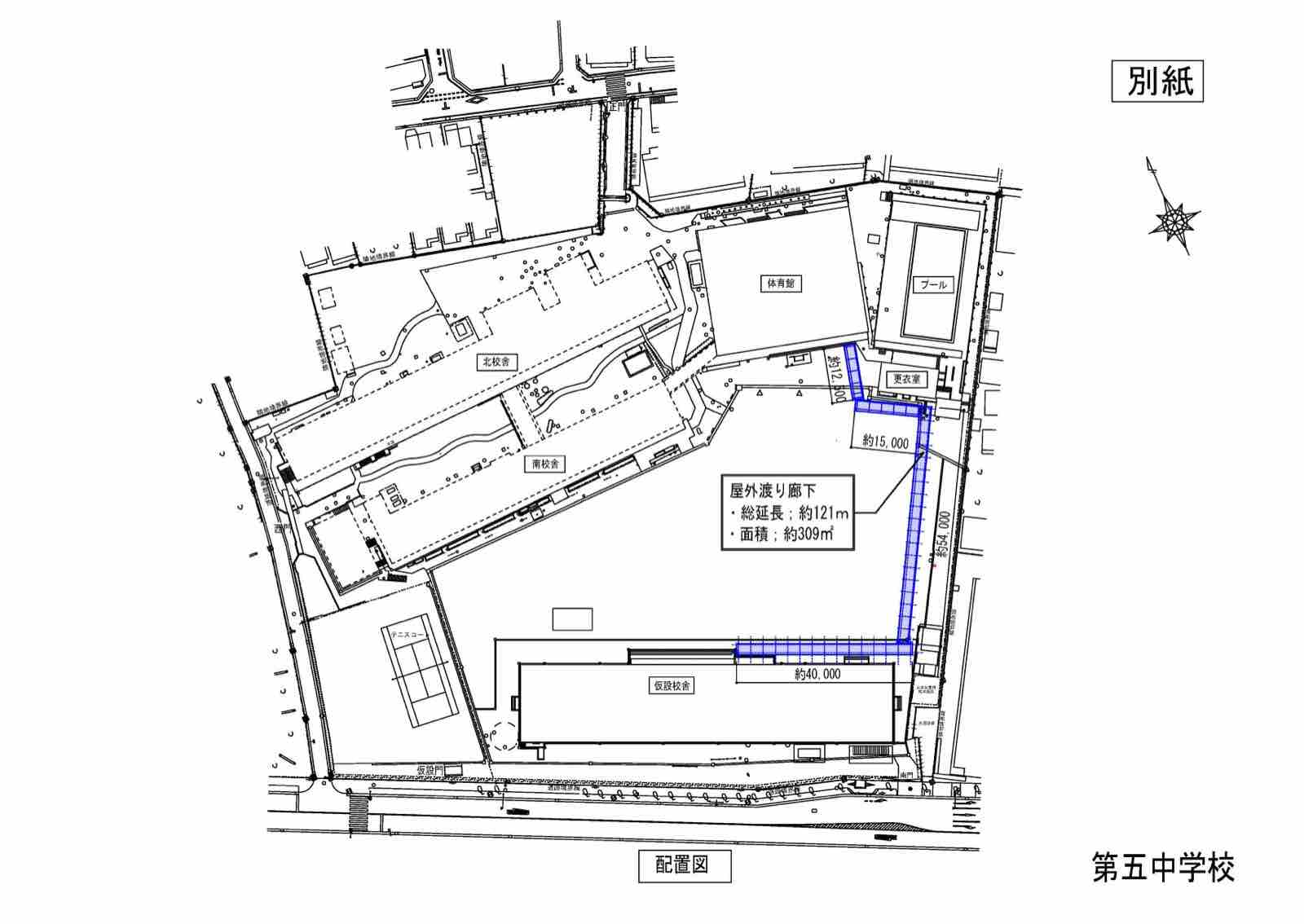
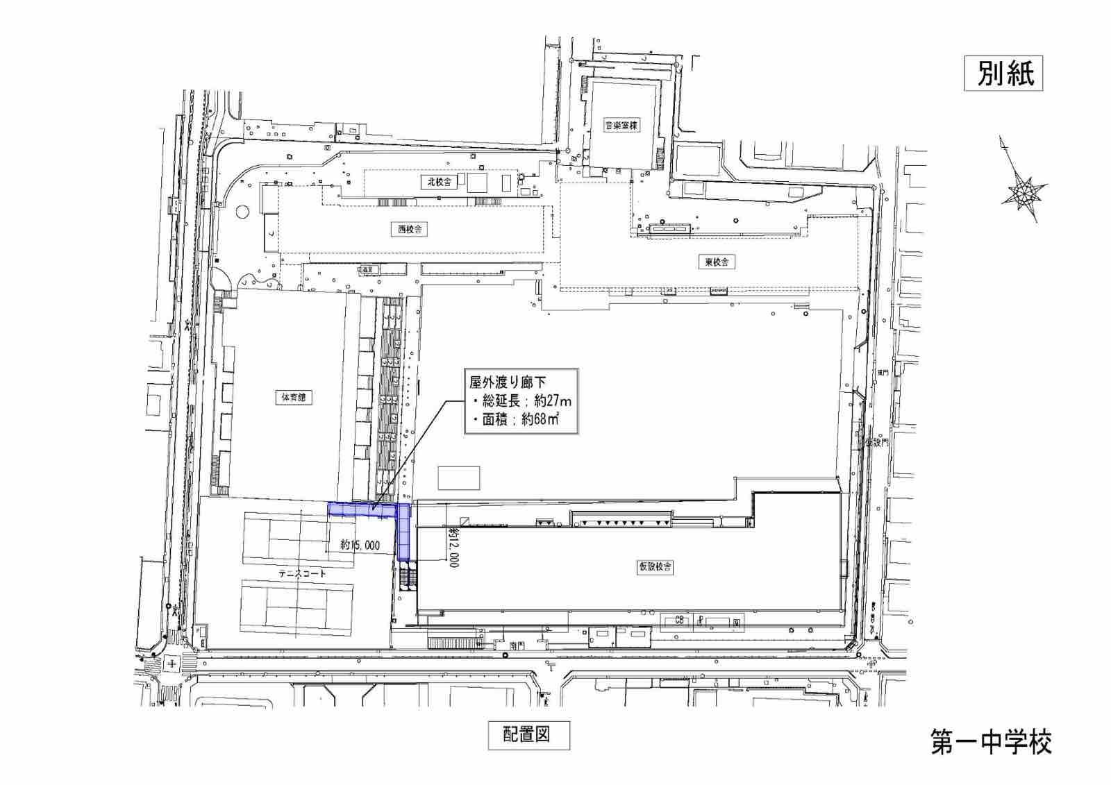
武蔵野市立自然の村における安全管理基準とクマの出没への対応について 児童青少年課 47
武蔵野市立自然の村の管理検査状況と検査項目(建築物以外を含む、倉庫や造作物、樹木)について 児童青少年課 48
隔地に設置された付置義務自転車駐車場 交通企画課 49
市営住宅、福祉型住宅、市内の都営住宅の募集戸数と応募状況・倍率 住宅対策課 50
多摩26市の住宅耐震化率の状況 住宅対策課・建築指導課 51
不登校児童生徒数の学年別人数 指導課 52
市立小中学校における武蔵野市民科の授業内容例 指導課 53
令和4年度全国学力・学習状況調査の児童生徒質問紙における学習者用コンピュータ活用に関連する項目の結果 指導課 54
市立中学校ごとの部活動名と所属生徒数 指導課 55
市講師、学習指導補助員、学習支援教室指導員、個別支援教室指導員、SS、TAそれぞれの人数の推移 教育支援課 56
学校給食施設別ランニングコスト・一食単価・施設改修工事費・アレルギー対応食数一覧 教育支援課 57
学校給食施設別職員数一覧 教育支援課 58
市立小中学校における学級閉鎖の実績 教育支援課 59
市立小中学校における交流共同学習の主な内容 教育支援課 60
家庭と子どもの支援員の人数の推移 教育支援課 61
市内における特別支援学級の学級数・児童生徒数の推移 教育支援課 62
市立小中学校における給食残菜率一覧 教育支援課 63
市立小中学校におけるPTA会費(令和4年度) 生涯学習スポーツ課 64
【資料】
2022年09月16日令和3年度決算会派請求資料.pdf (4921KB)
武蔵野市が購入した旧赤星邸(吉祥寺本町4丁目)には、耐震性やアスベスト、公園内であるため現状の3つの建物を残せるか? などの課題が分かった。今後、利活用を市民ワークショップなどで検討する。
